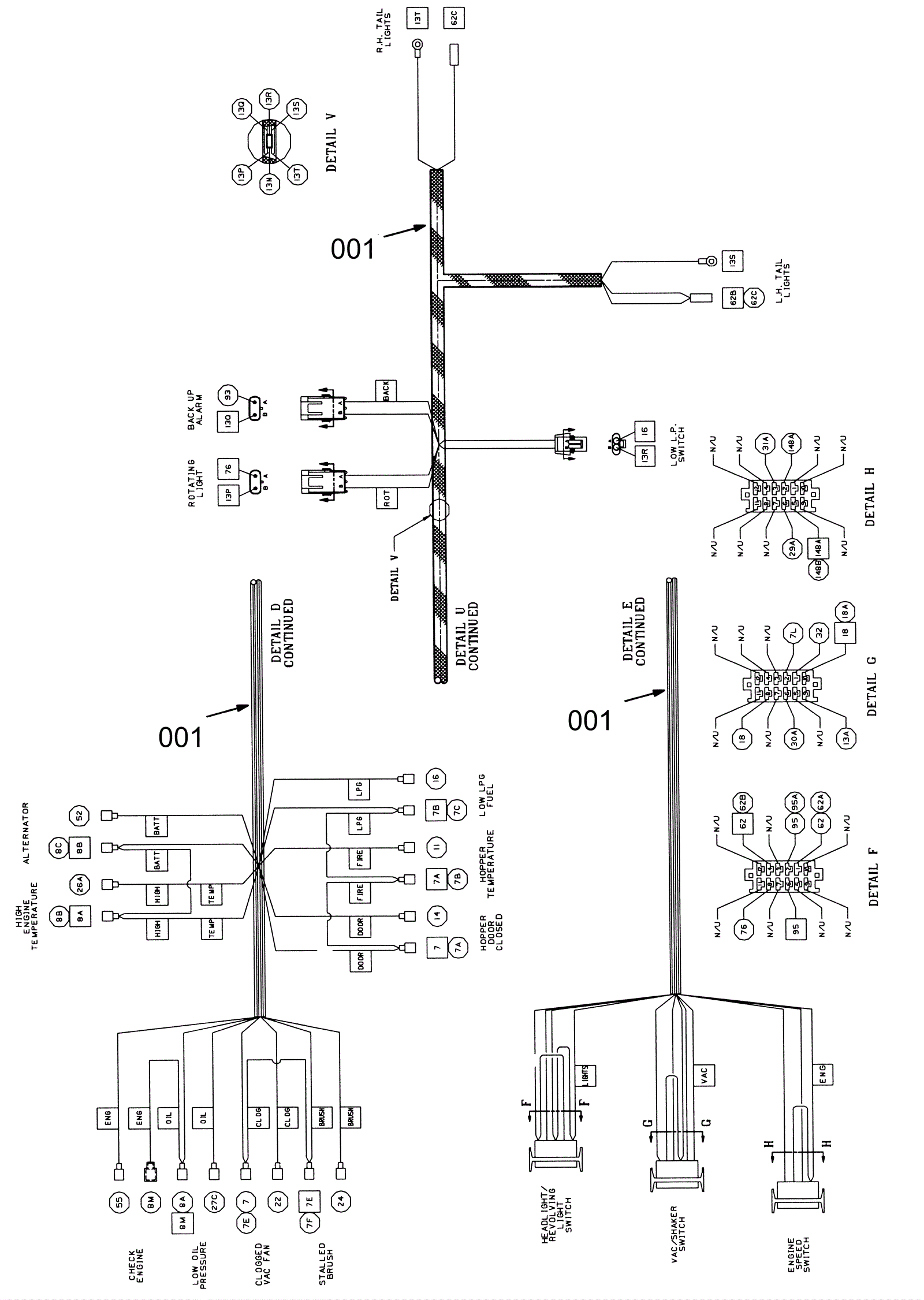
Wire Harness Assembly 4
Click to enlarge