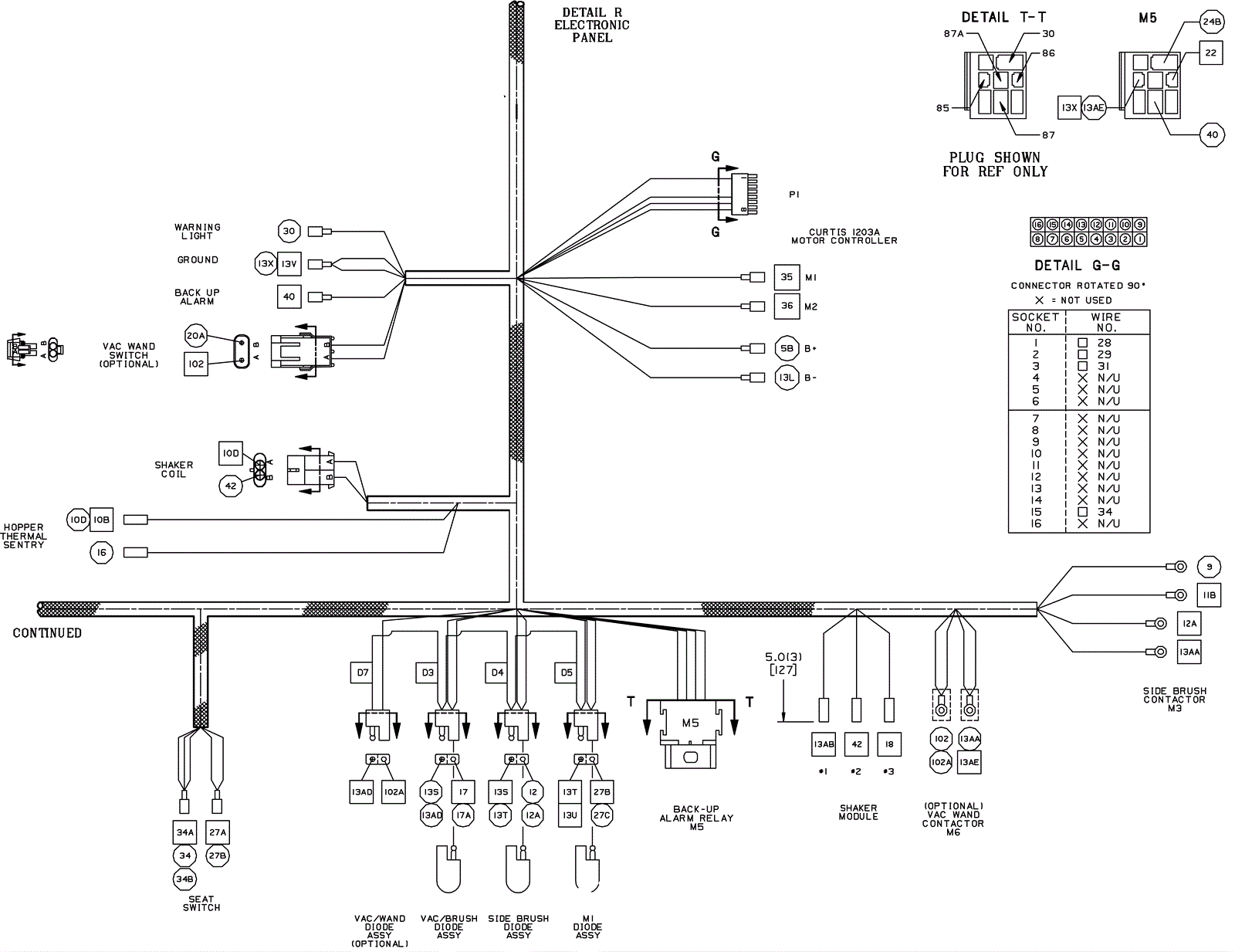
Wire Harnesses Assembly - Part 2
Click to enlarge