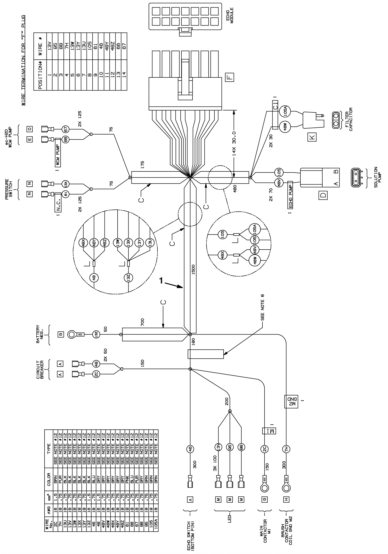
Wiring Harness - ec-H2O NanoClean - After SN 10740686
Click to enlarge
#
Part
Description
Price
Req
Notes
Availability
1
375-1161
G2 ec-H2O wiring harness
$94.49
1
usually ships 1-5 days