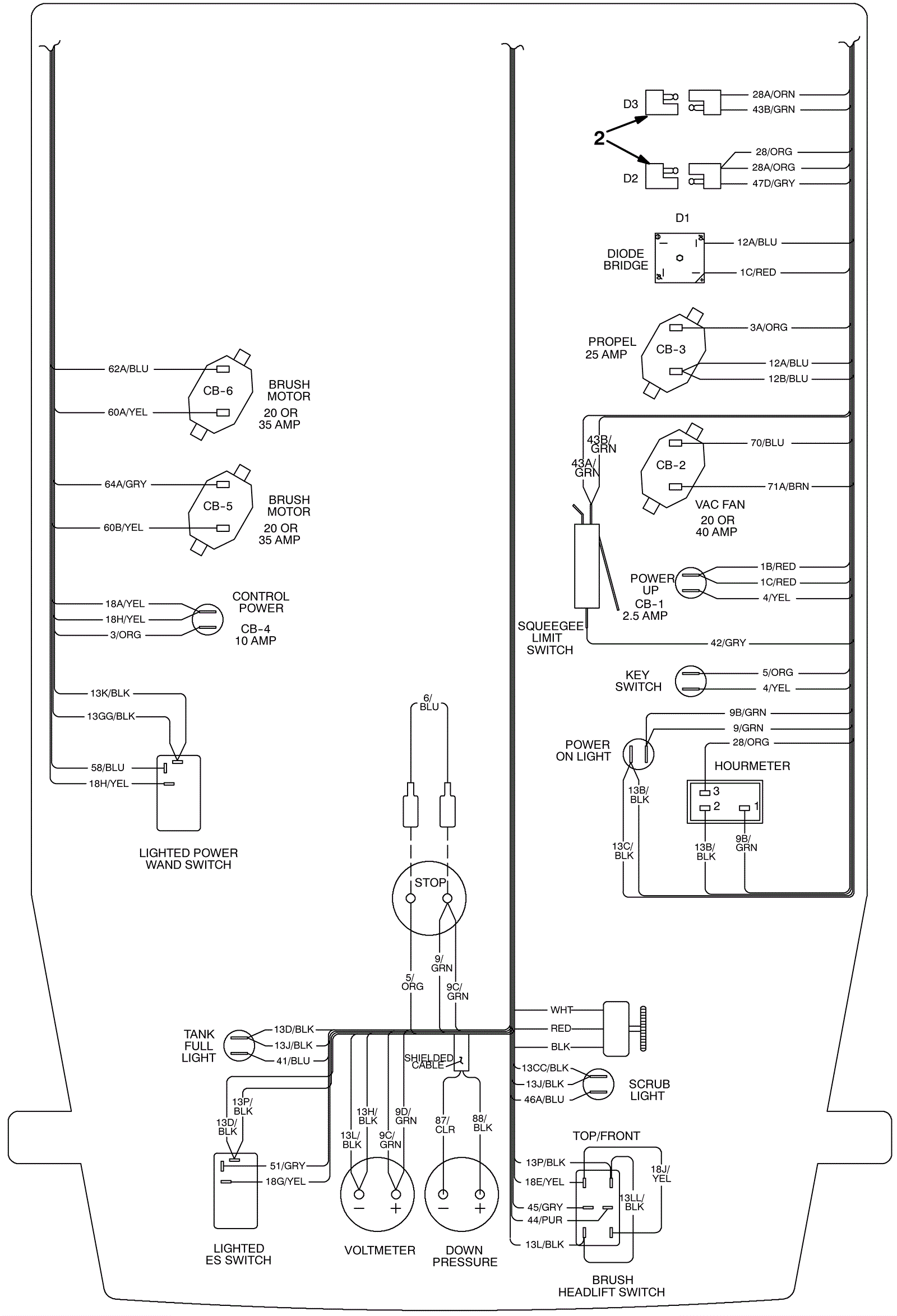
5700 SERIES
Main Wiring Assembly 2 - Before SN 022000
Click to enlarge
#
Part
Description
Price
Req
Notes
Availability
2
175-2216
Diode plug
$14.19
2
usually ships 10-13 days