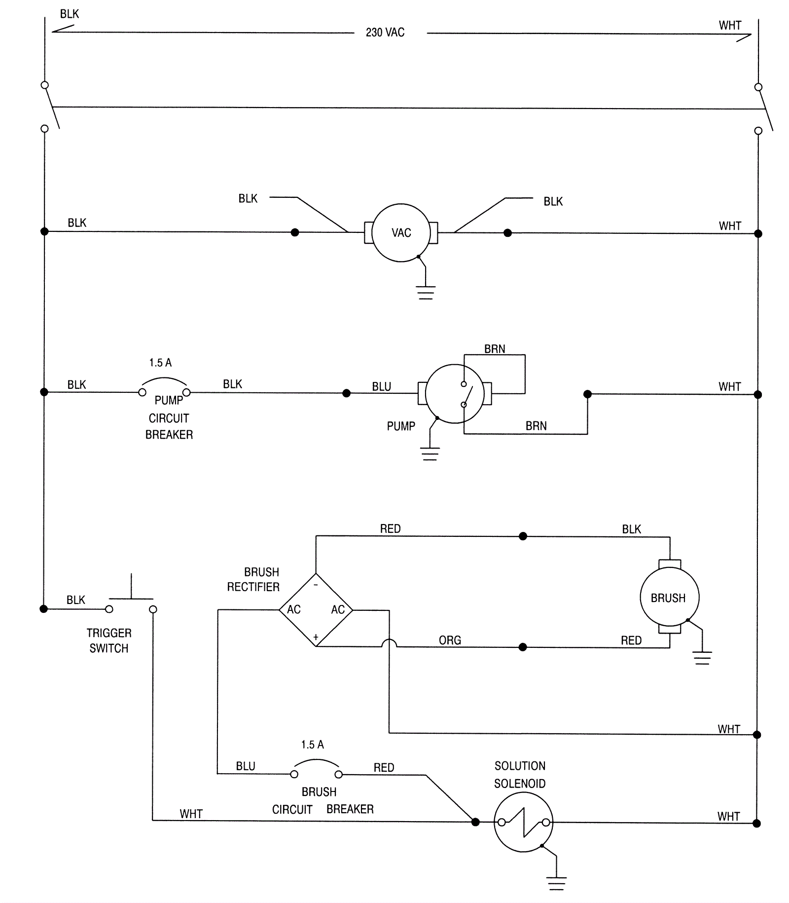
Electrical Diagrams 220V/230V Ladder Diagram
Click to enlarge