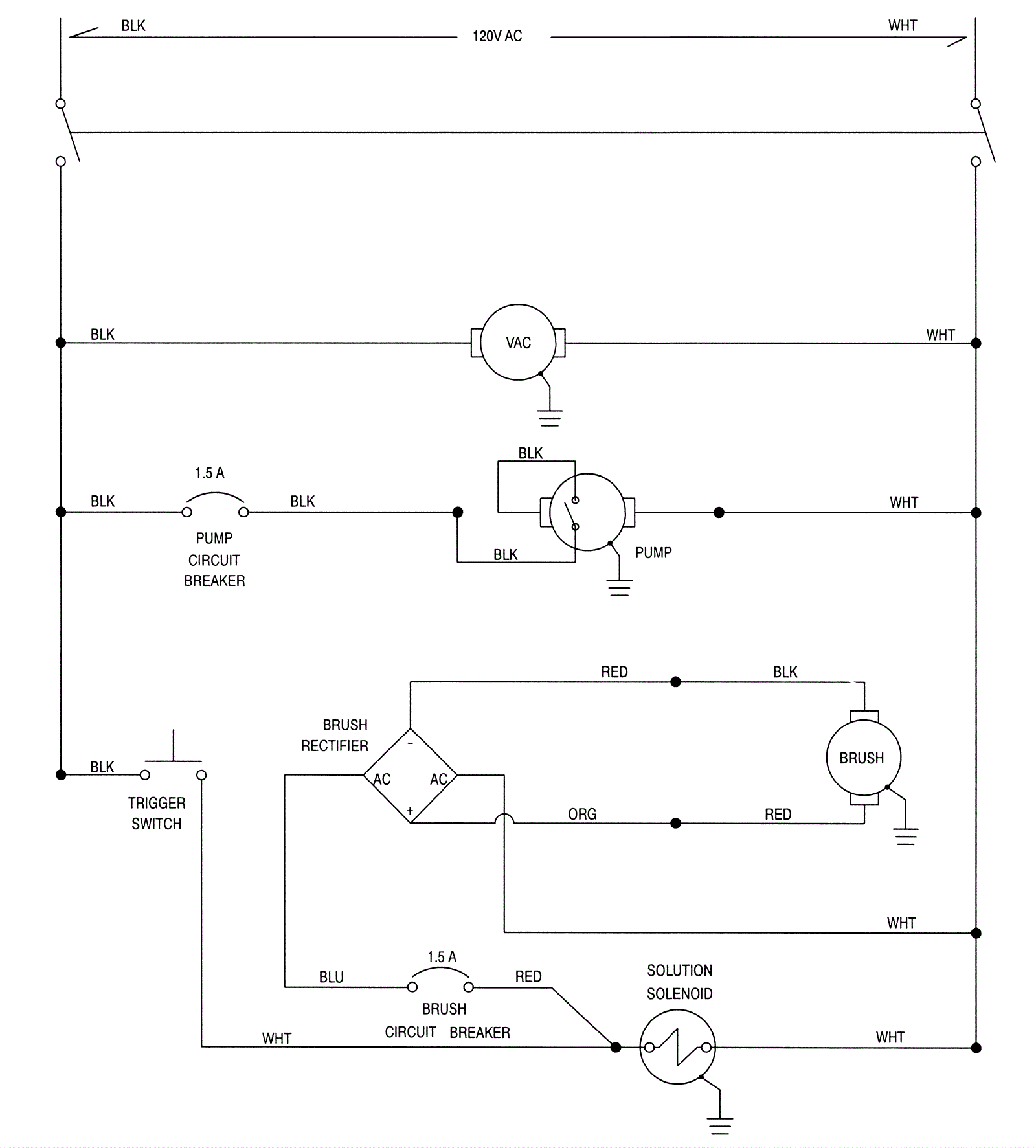
Electrical Diagrams 120 V Ladder Diagram
Click to enlarge