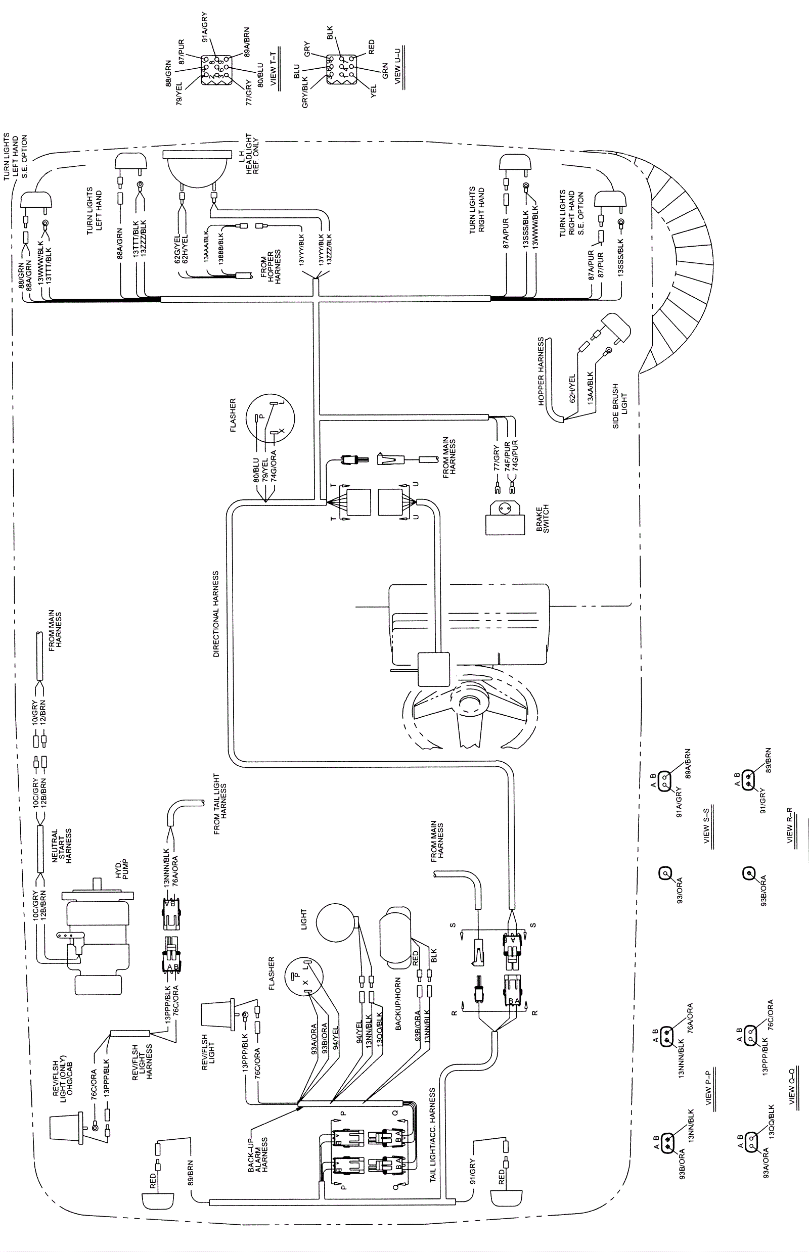
Wire Harnesses Group (For Machines Below Serial Numbr 1700) 10
Click to enlarge