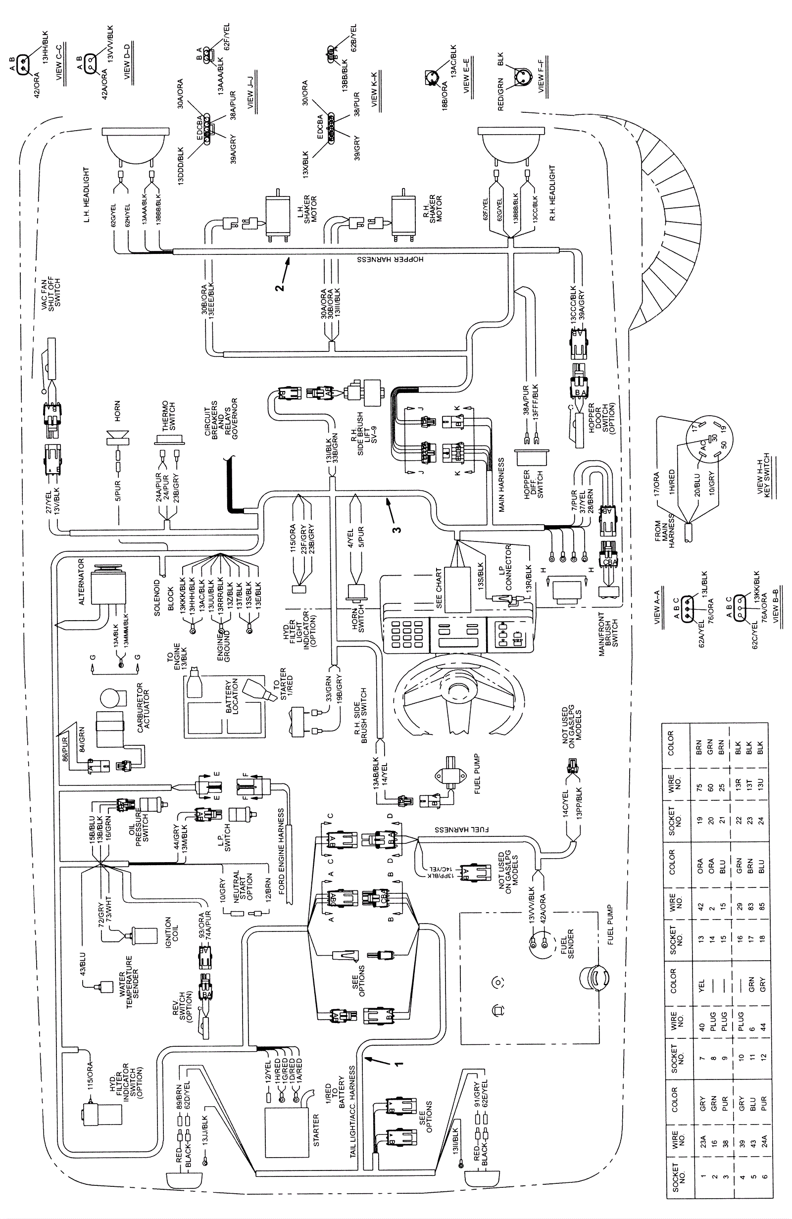
Wire Harnesses Group ( For Machines Below Serial Number 1700) 8
Click to enlarge