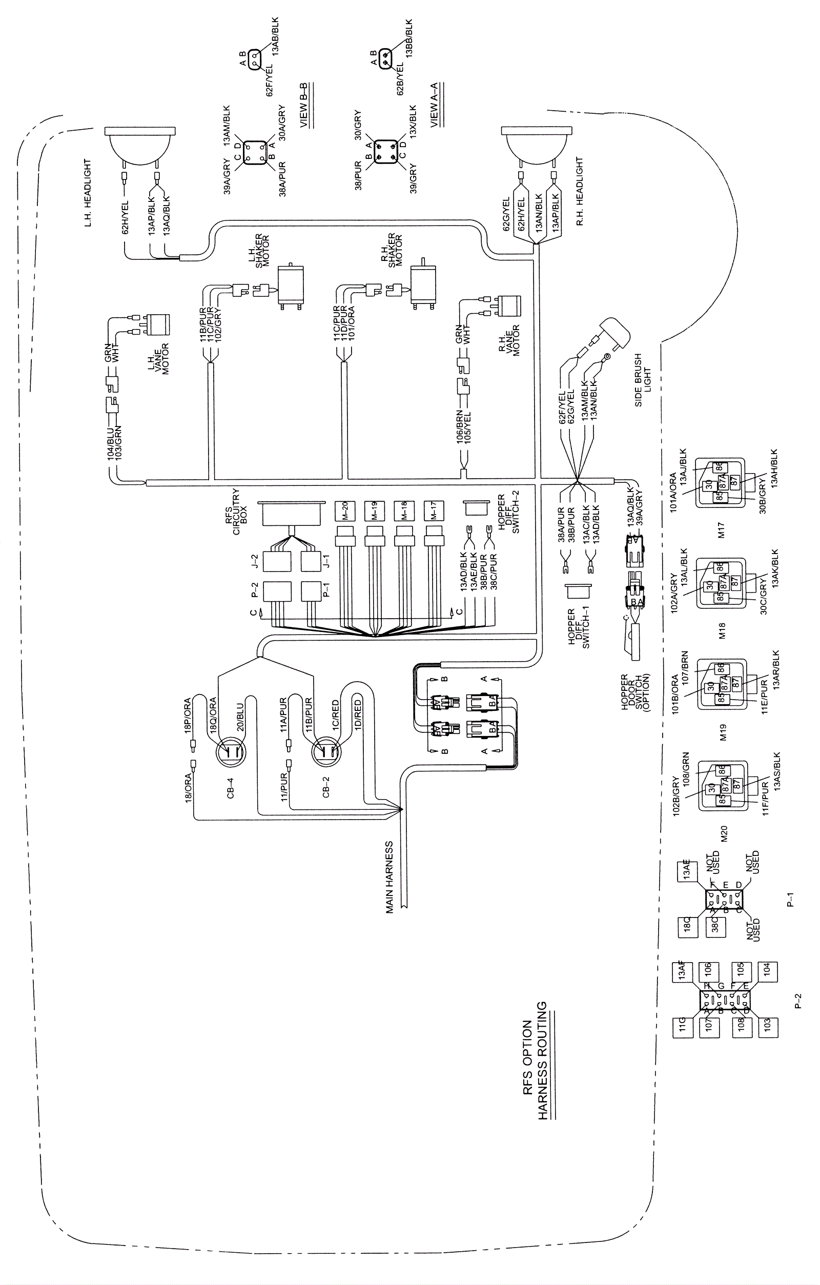
Wire Harnesses Group (For Machines Below Serical Number 17002) 5
Click to enlarge