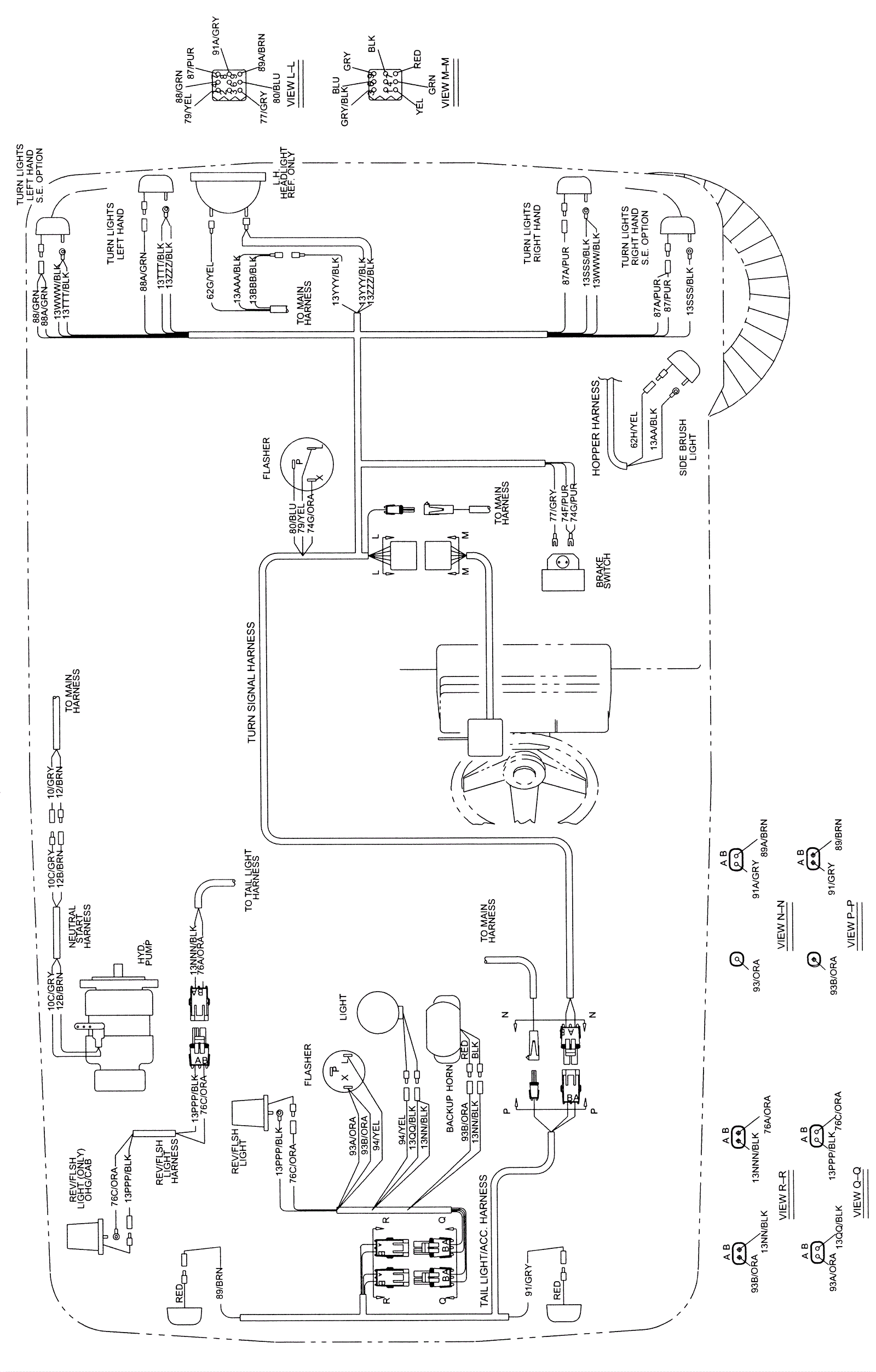
Wire Harnesses Group ( For Machine Below Serial Number 1700) 3
Click to enlarge