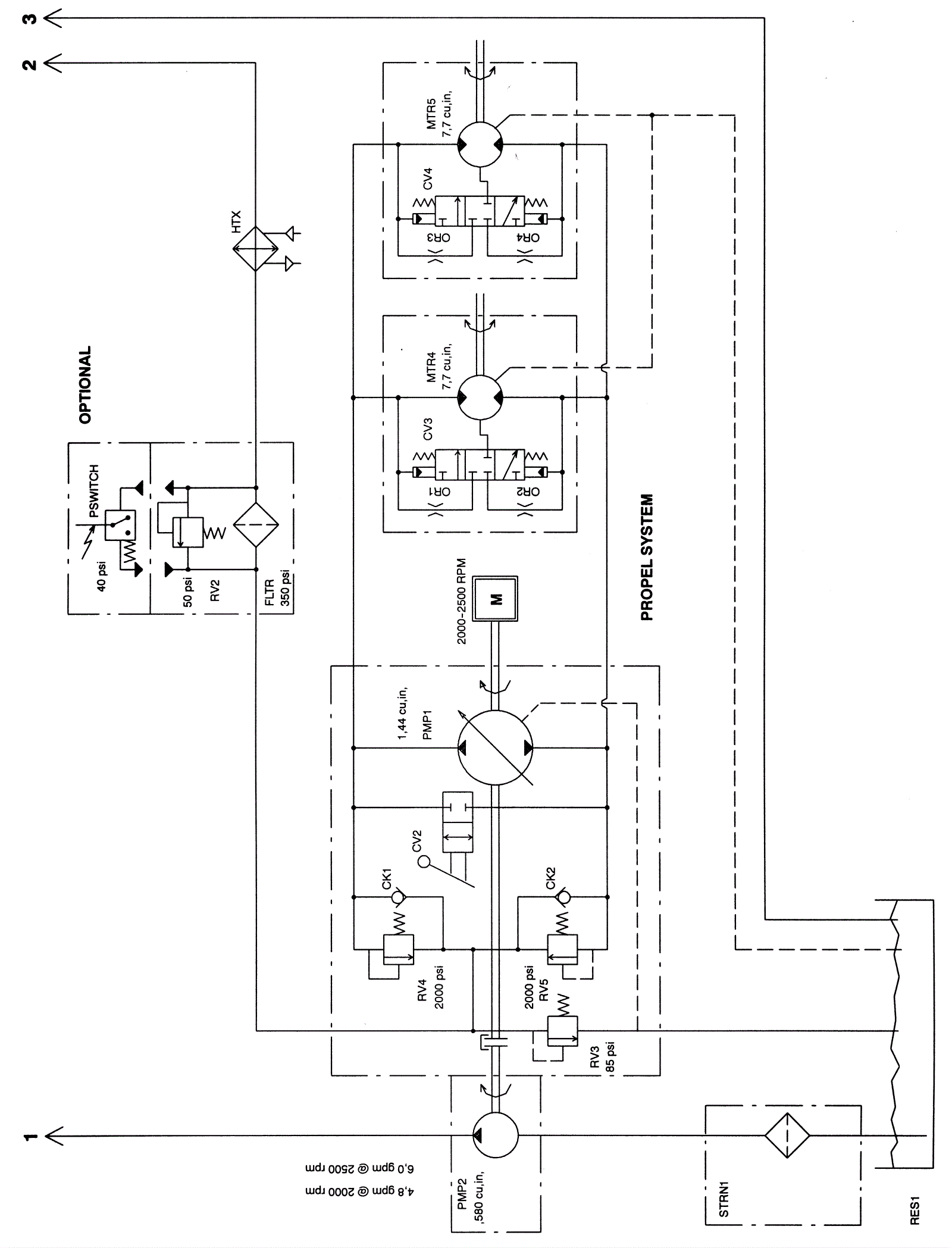
Hydraulic Schematic - 2
Click to enlarge