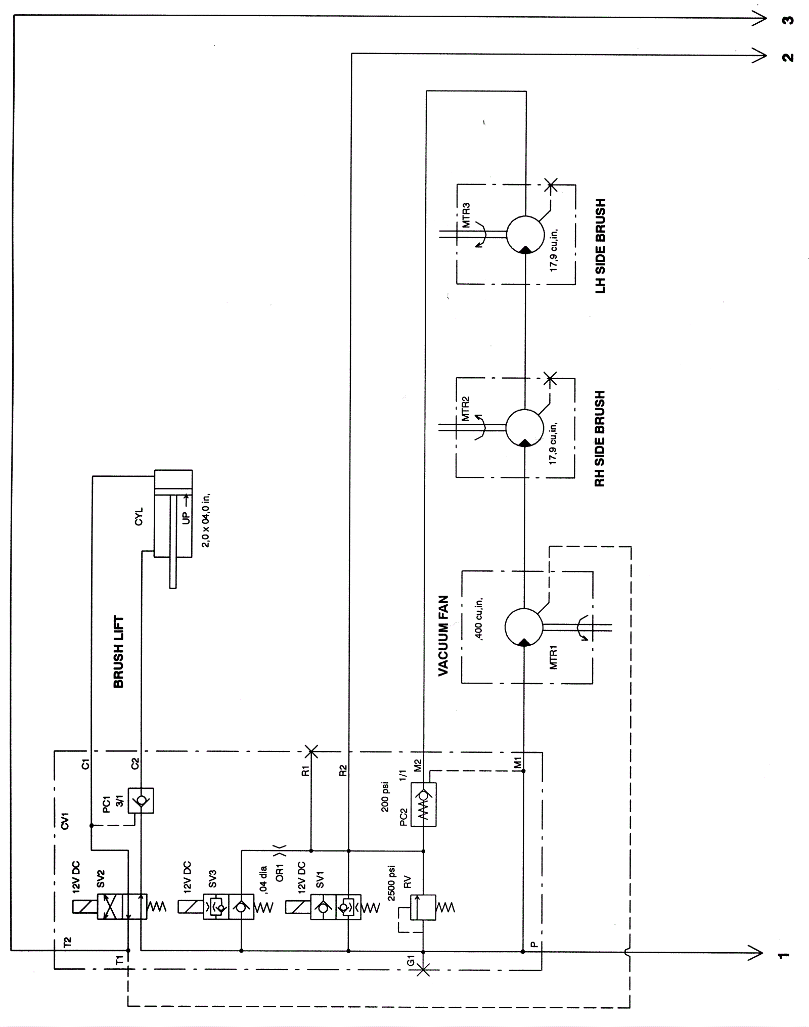
Hydraulic Schematic - 1
Click to enlarge