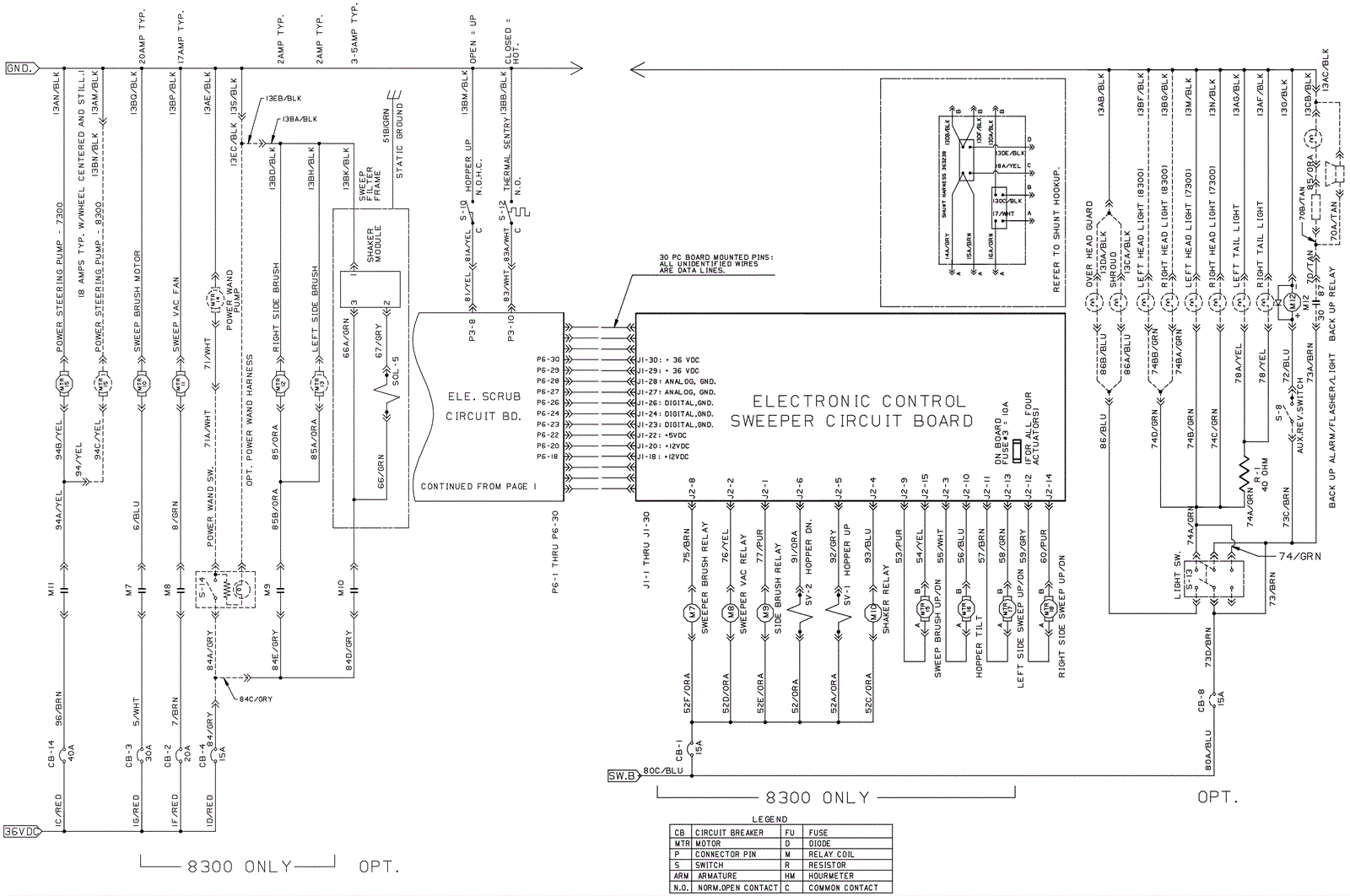
Electrical Schematic 2 - Before SN 003747
Click to enlarge