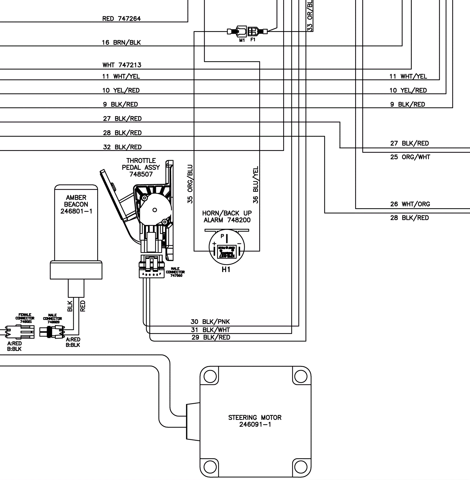
Electrical Schematics 7
Click to enlarge