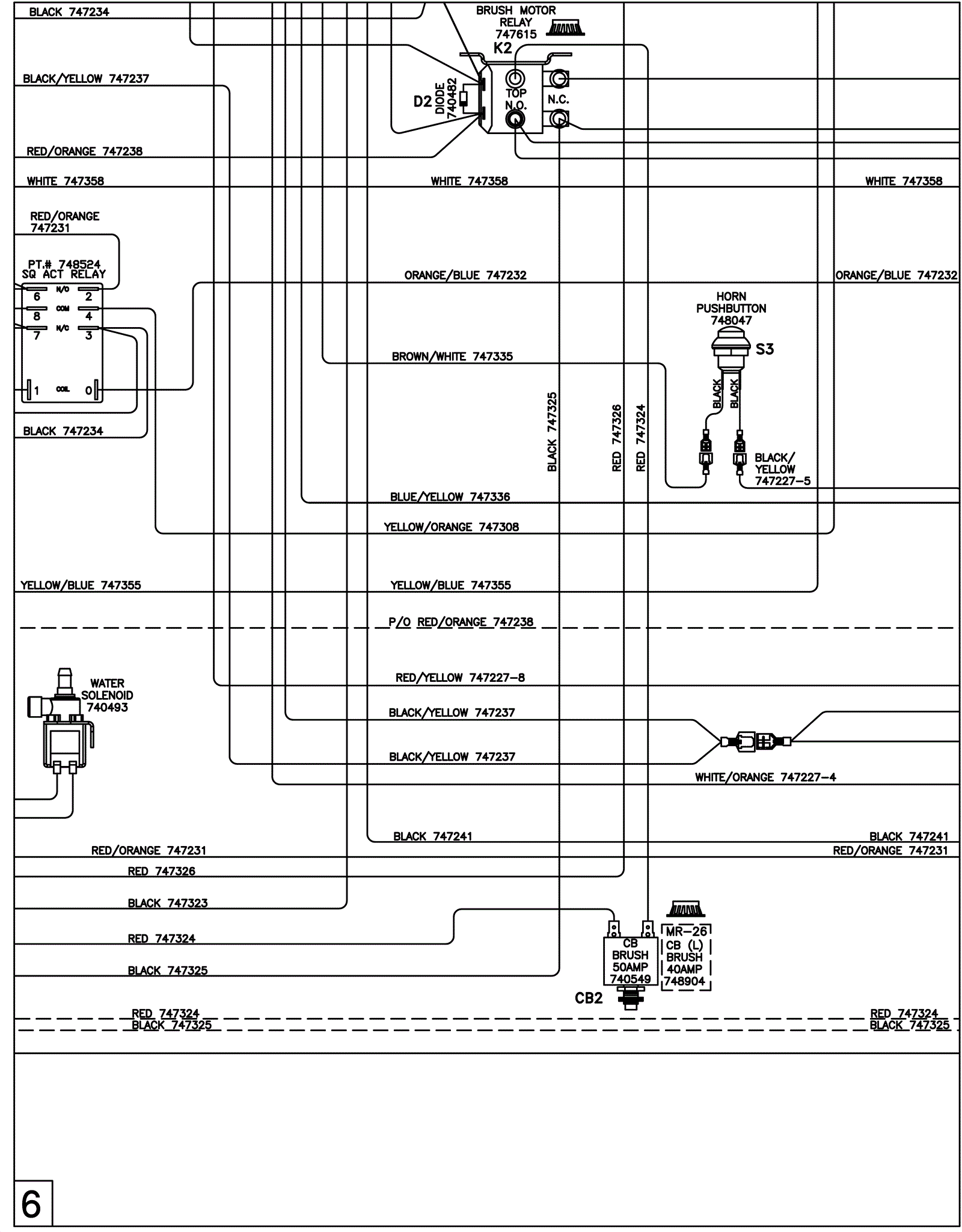
Wiring Diagram - Sport 6
Click to enlarge