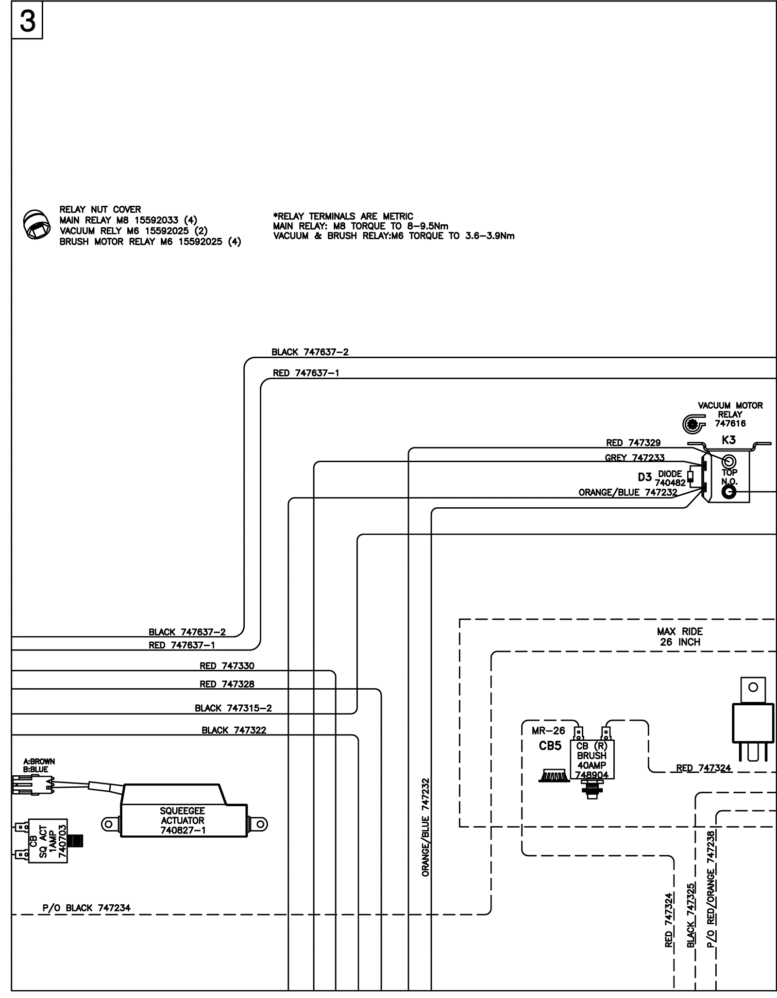
Wiring Diagram - Sport 3
Click to enlarge