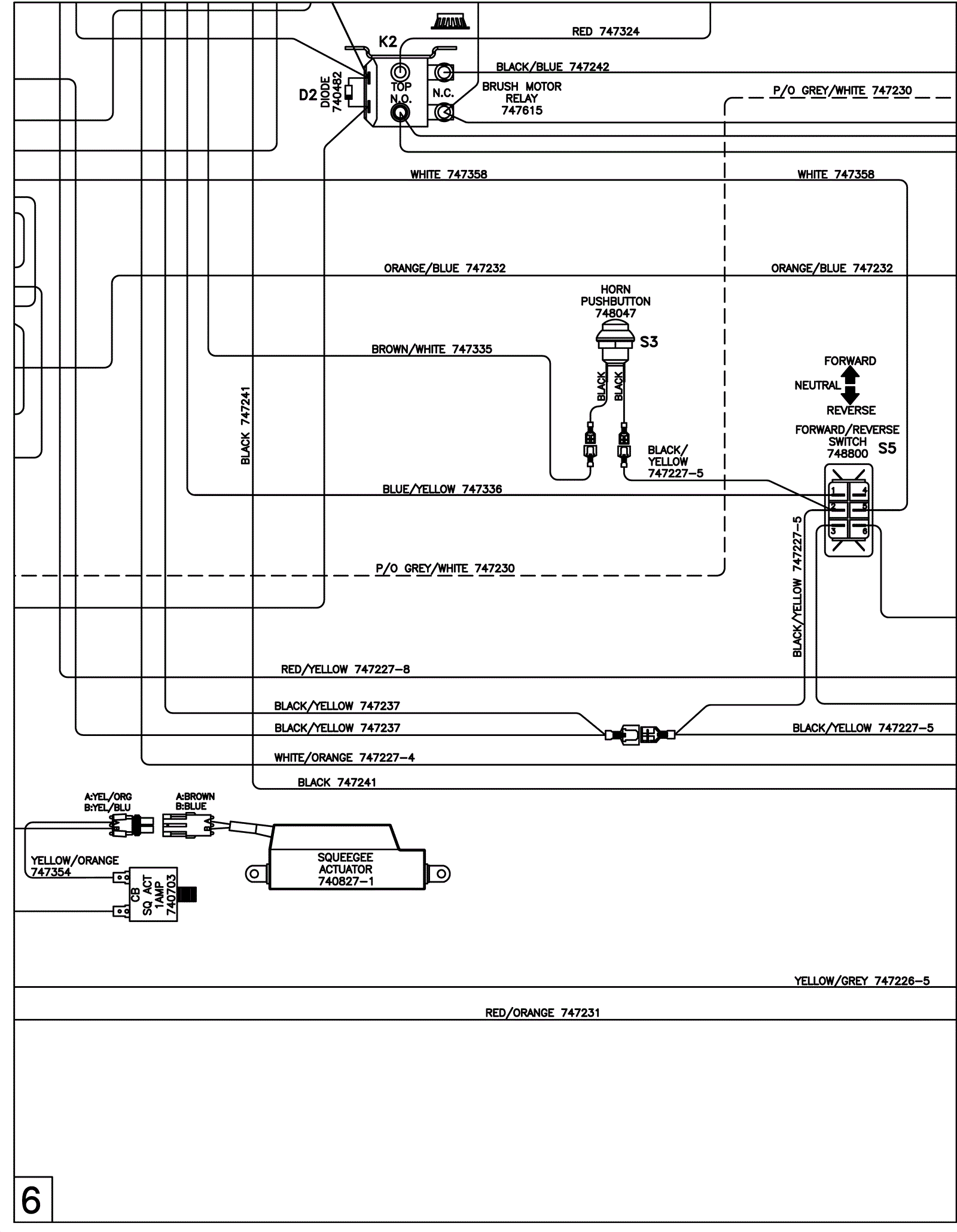
Wiring Diagram - ECO 6
Click to enlarge