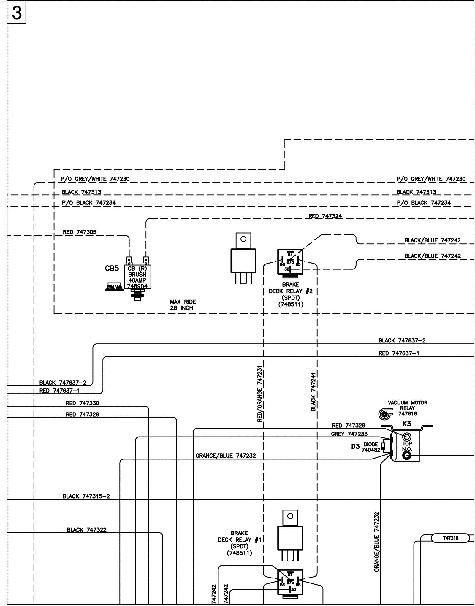
Wiring Diagram - ECO 3
Click to enlarge