KS35-HM350000QP
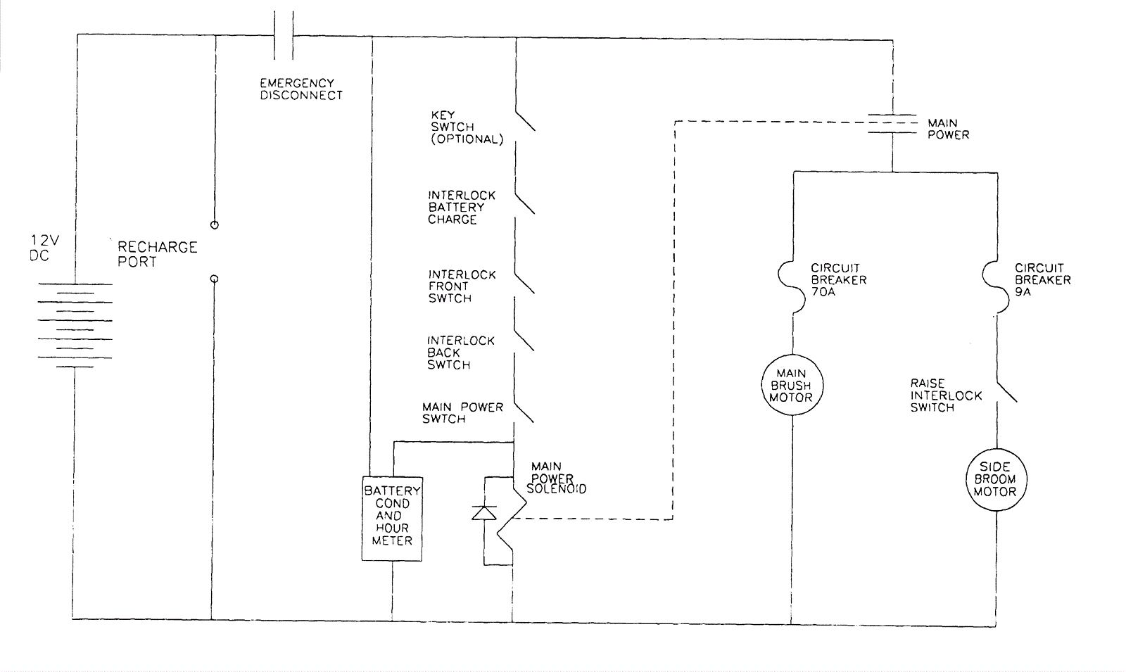
Schematic Diagram
Click to enlarge
#
Part
Description
Price
Req
Notes
Availability
01
174-8423
Battery charger with plug (OBSOLETE)
$926.58
usually ships 9-13 days