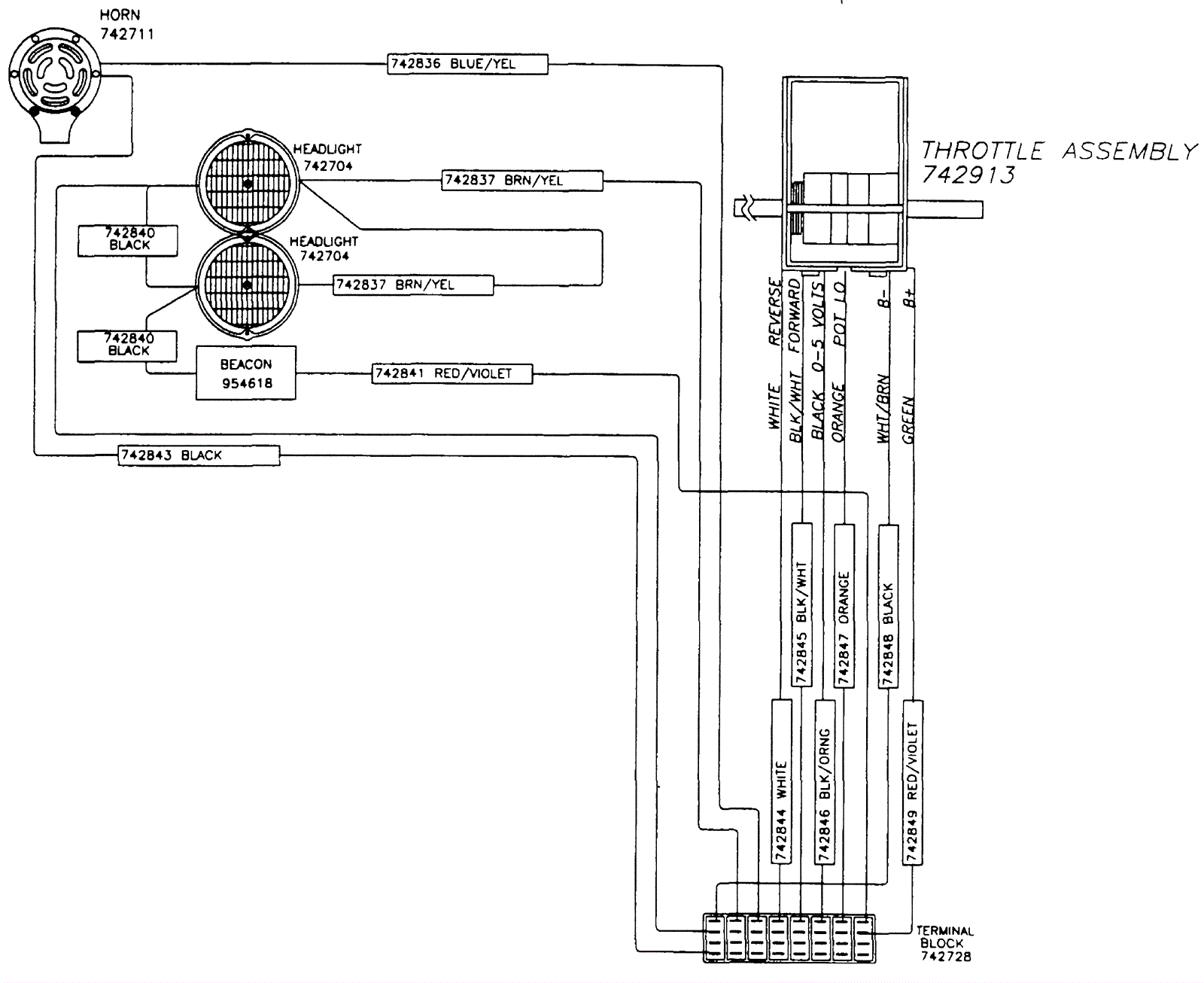
Front Console Wiring Diagram
Click to enlarge