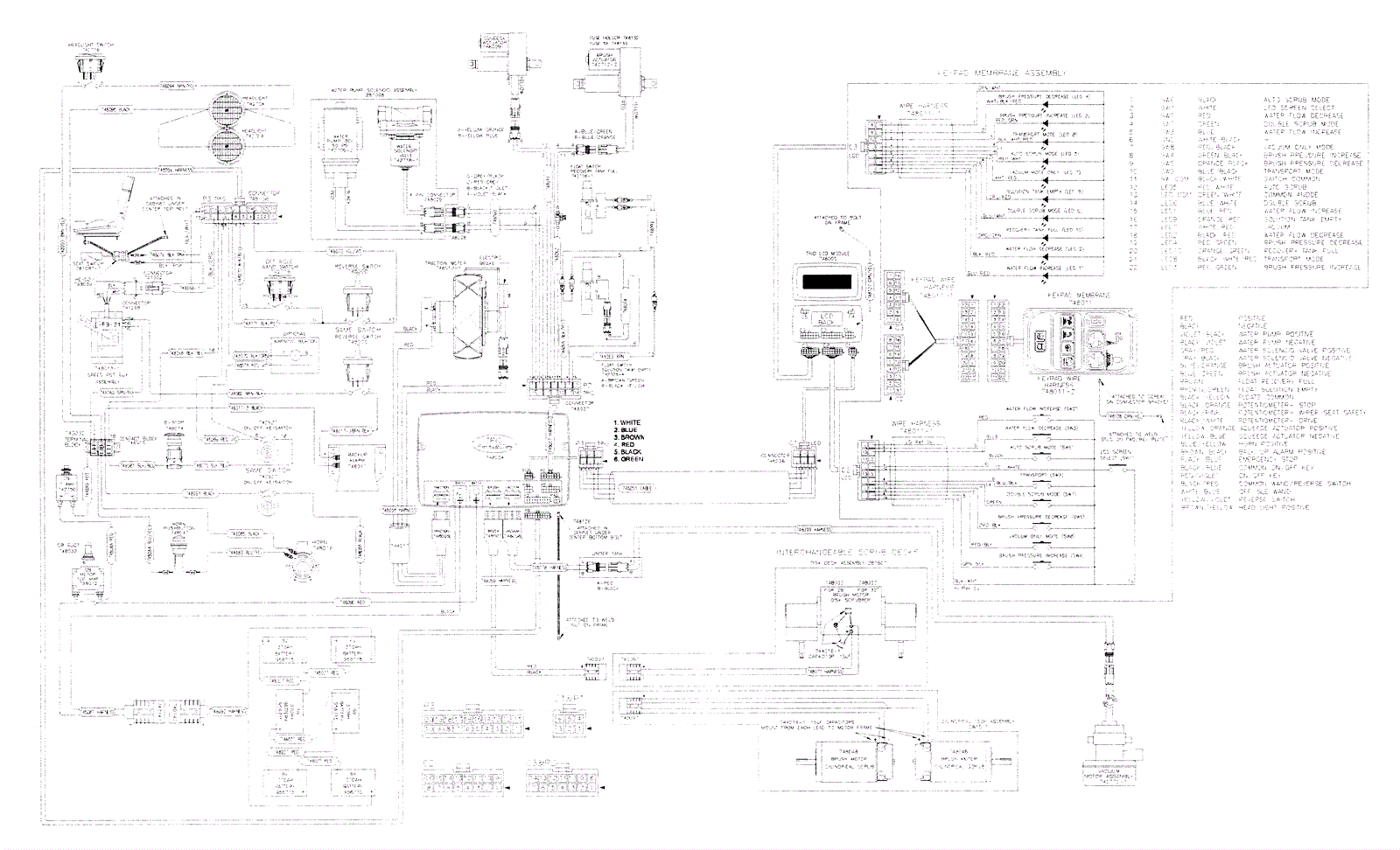
Complete Wiring Diagram
Click to enlarge