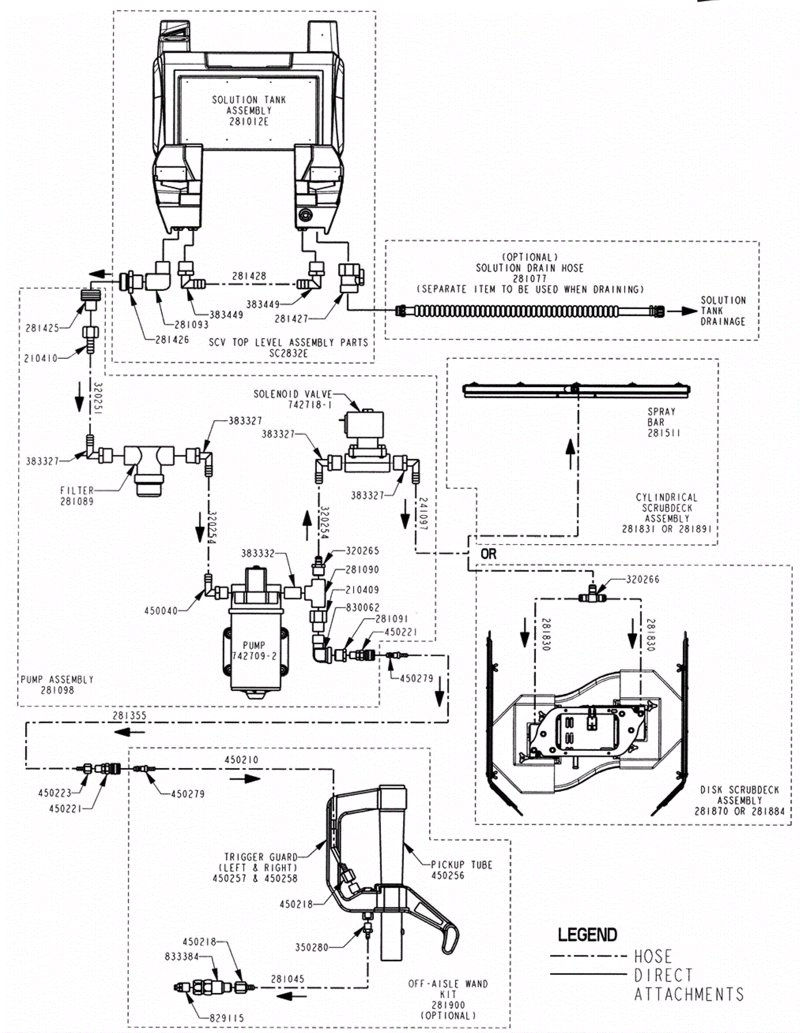
Plumbing Diagram
Click to enlarge