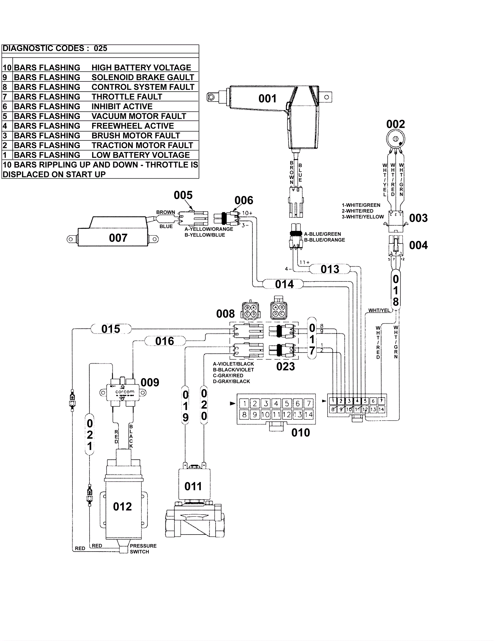
Wiring Diagram with Diagnostic Codes
Click to enlarge