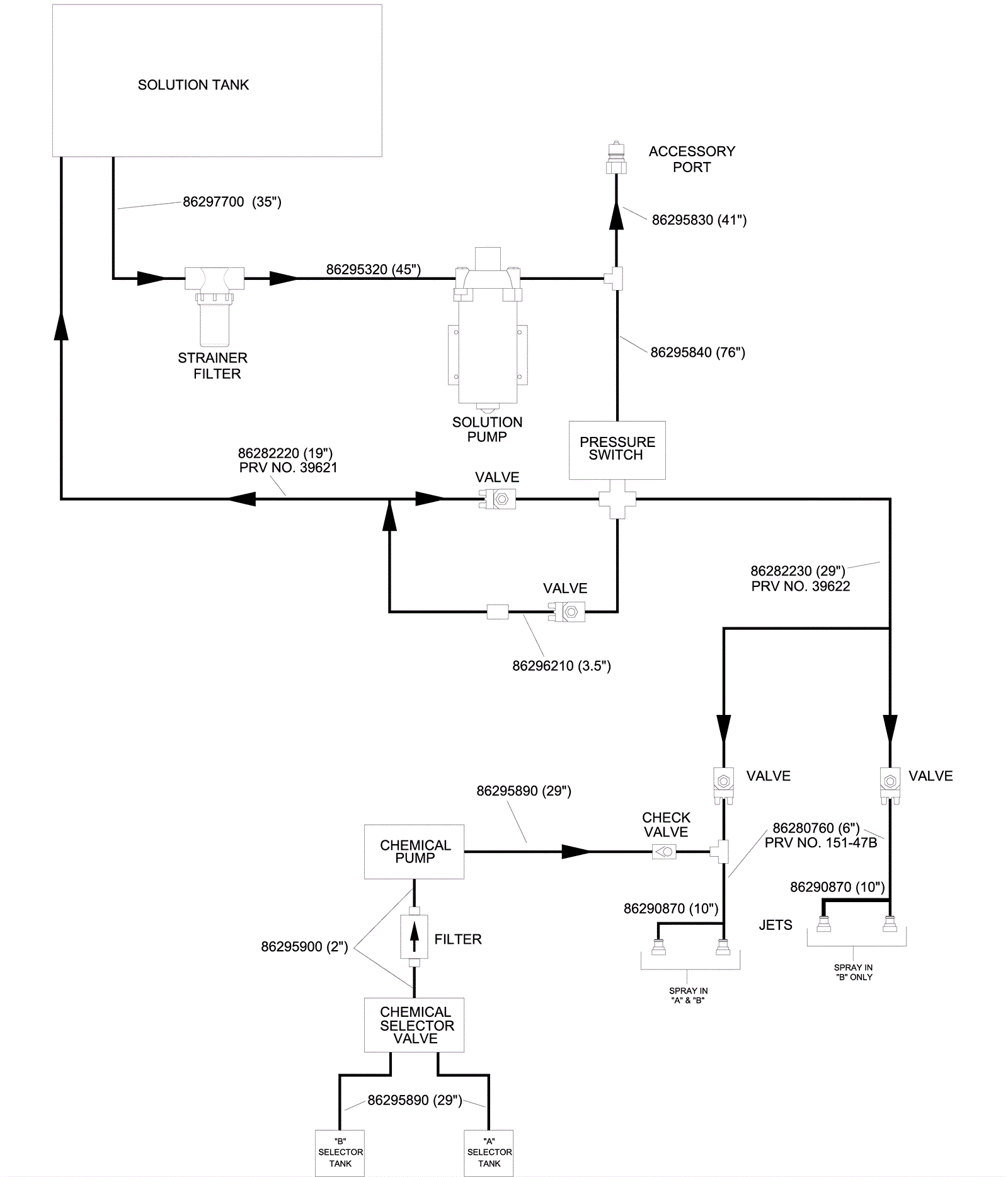
Hose Diagram - Deluxe
Click to enlarge