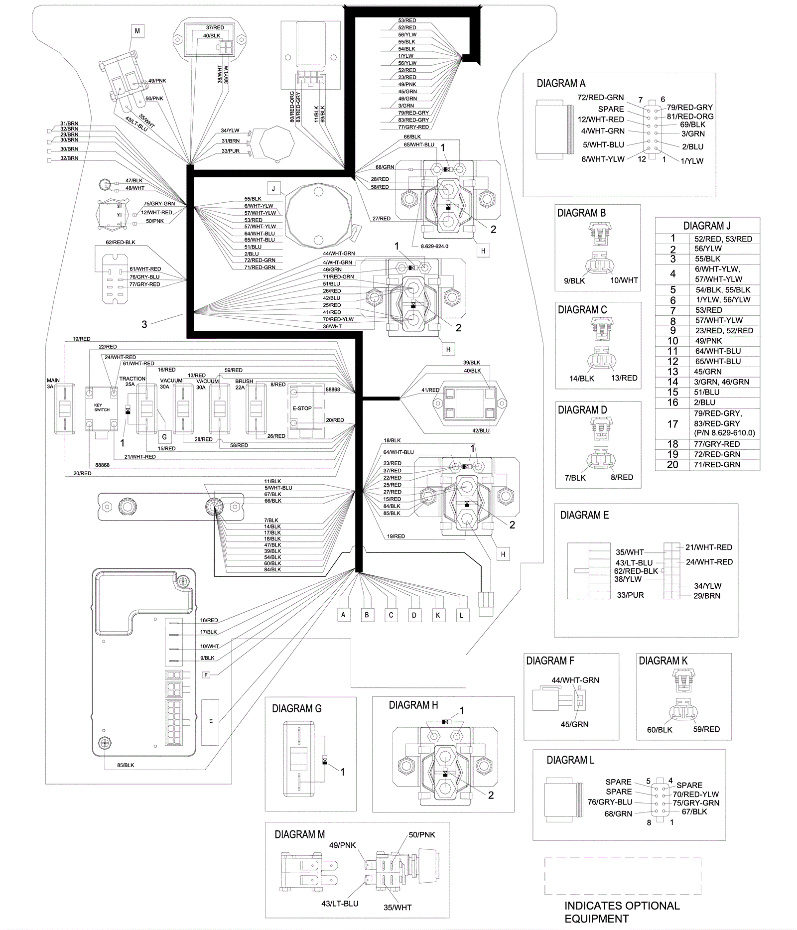
COMMODORE DUO
Control Panel Wiring Diagram - Deluxe
Click to enlarge
#
Part
Description
Price
Req
Notes
Availability
1
173-1716
Diode assembly
$57.55
4
usually ships 11-15 days
2
173-5604
Recovery diode assembly
$39.44
3
usually ships 11-15 days
3
273-0227
Deluxe panel harness
$484.97
1
usually ships 1-5 days