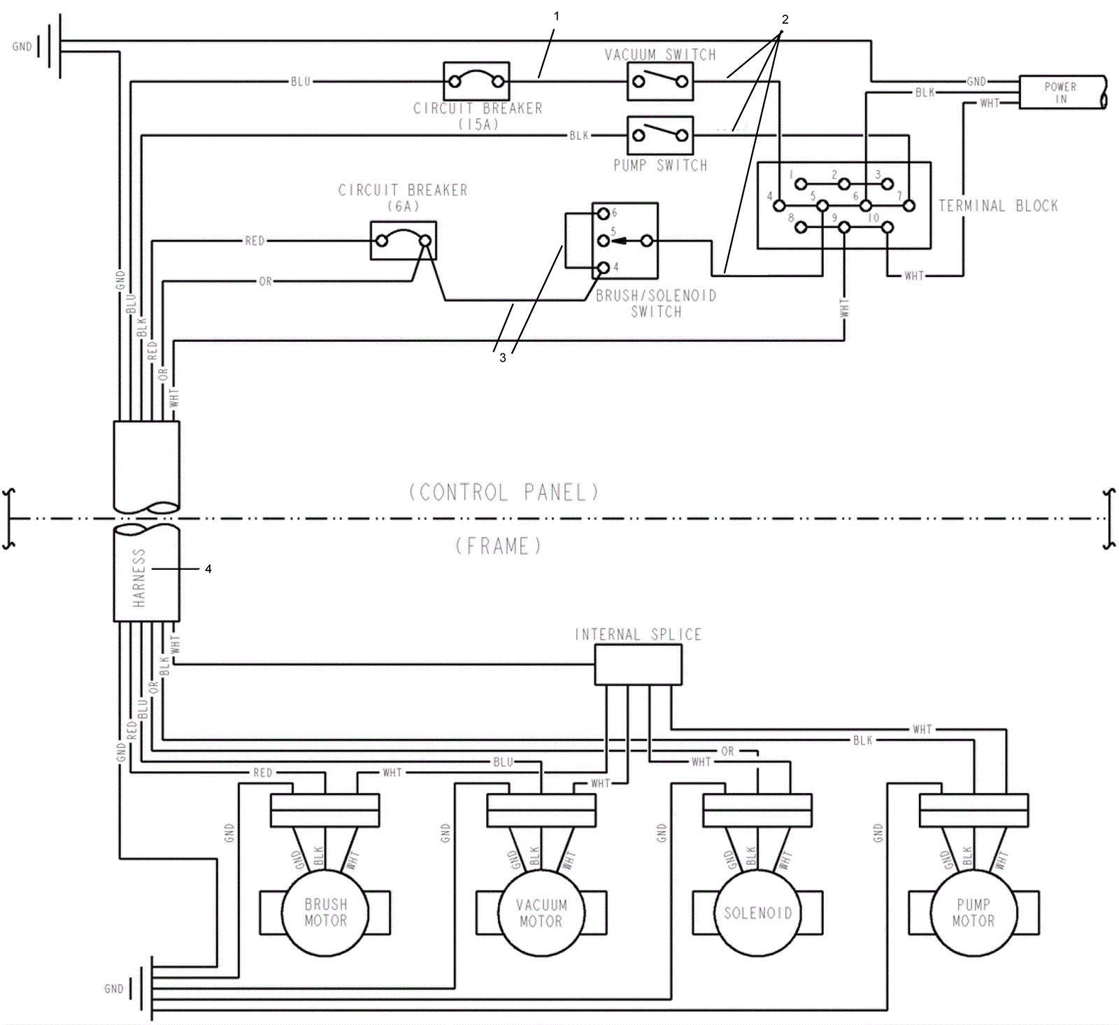
CADET CDT7
Wiring Diagram
Click to enlarge
#
Part
Description
Price
Req
Notes
Availability
1
273-6241
Wire 7 inch (black)
$12.95
1
usually ships 1-5 days
2
273-6242
Wire 8 inch (black)
$11.72
1
usually ships 1-5 days
3
273-6243
Wire 6 inch (black)
$15.84
1
usually ships 1-5 days
4
173-2180
Main harness
$258.94
1
usually ships 11-15 days