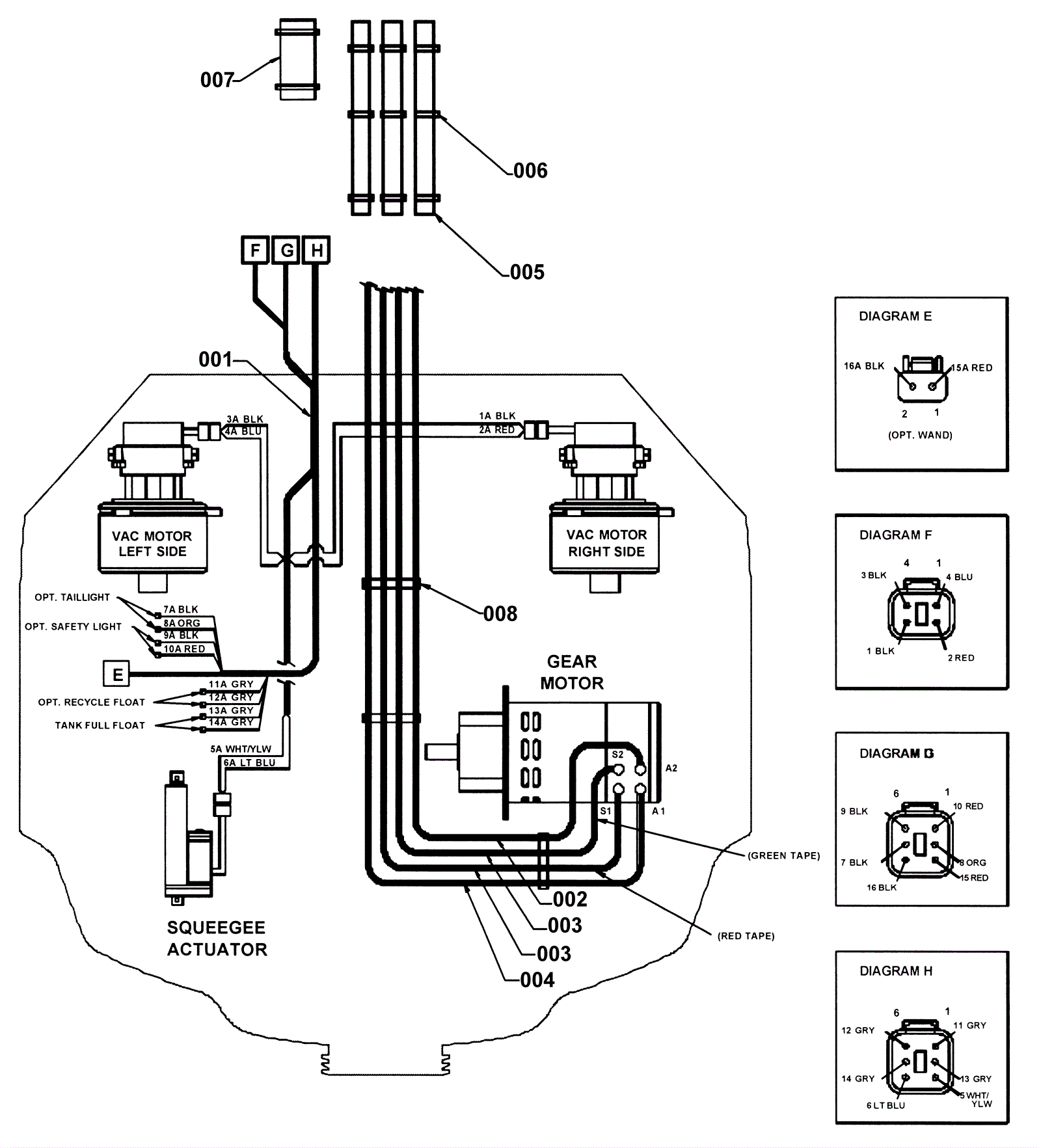
Rear Main Harness Wiring Assembly
Click to enlarge