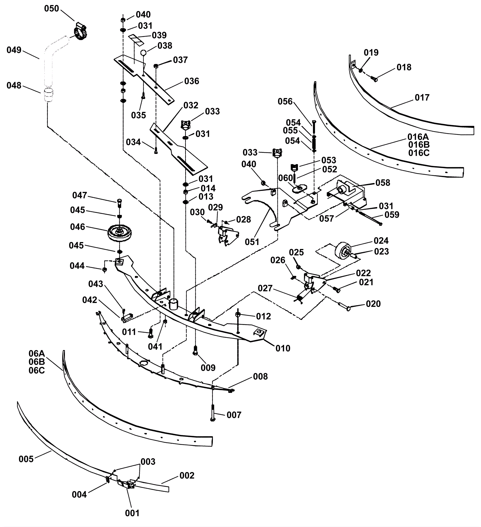
Tight Squeegee Assembly
Click to enlarge