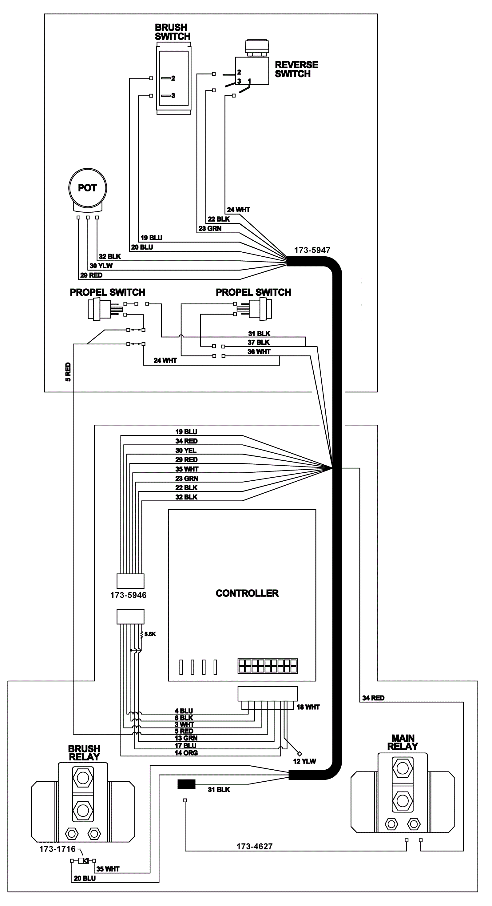
Control Panel Wiring Diagram 1 - Traction
Click to enlarge