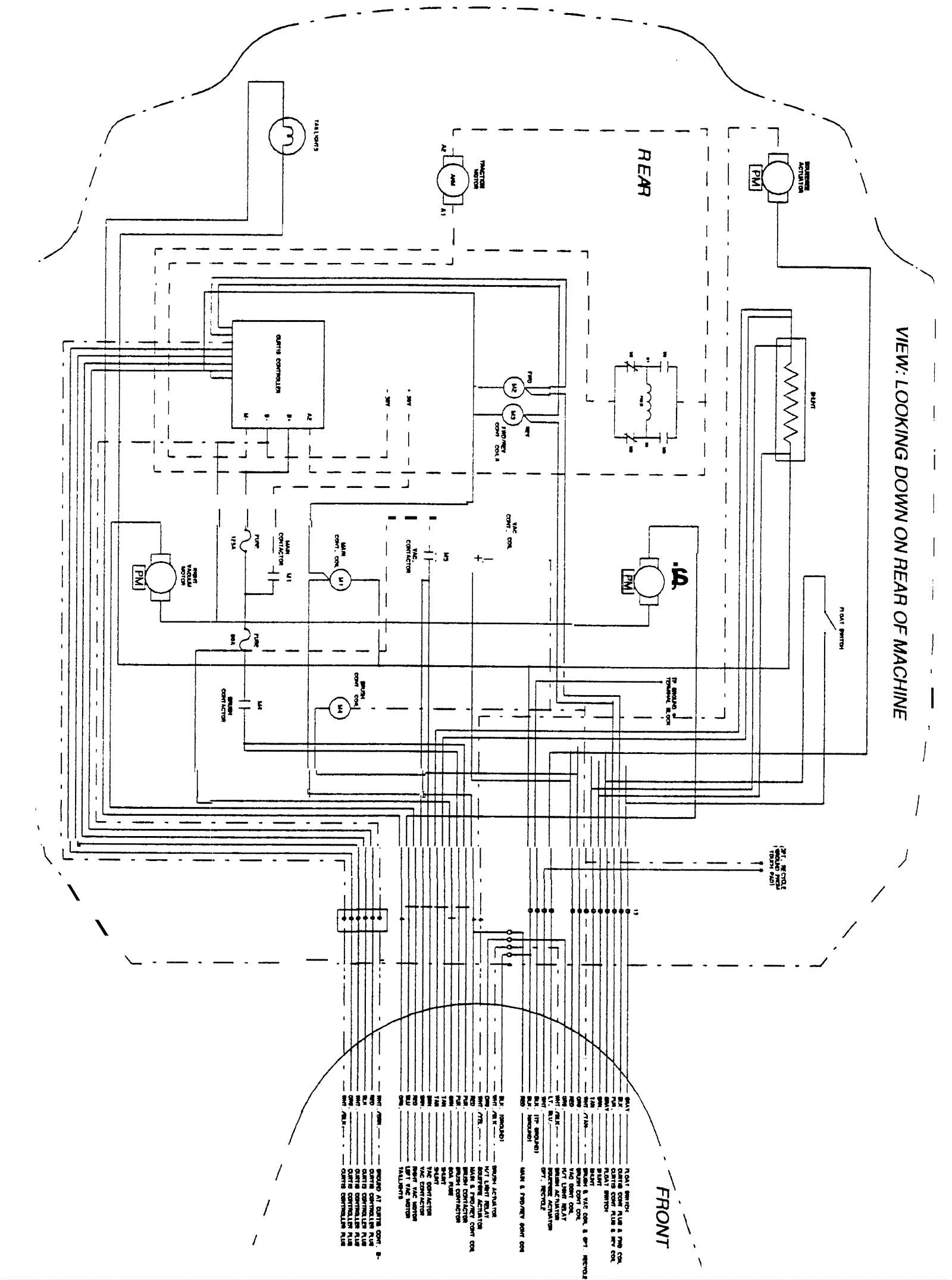
Wiring Group 3
Click to enlarge