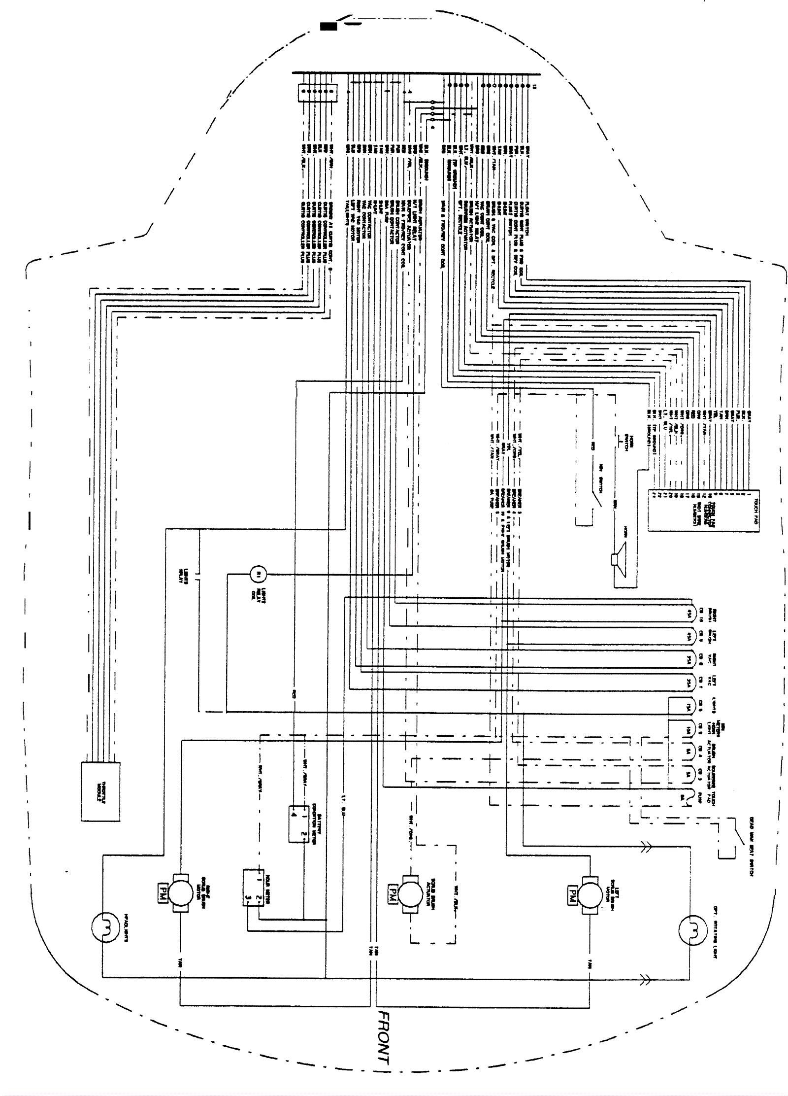
Wiring Group 2
Click to enlarge