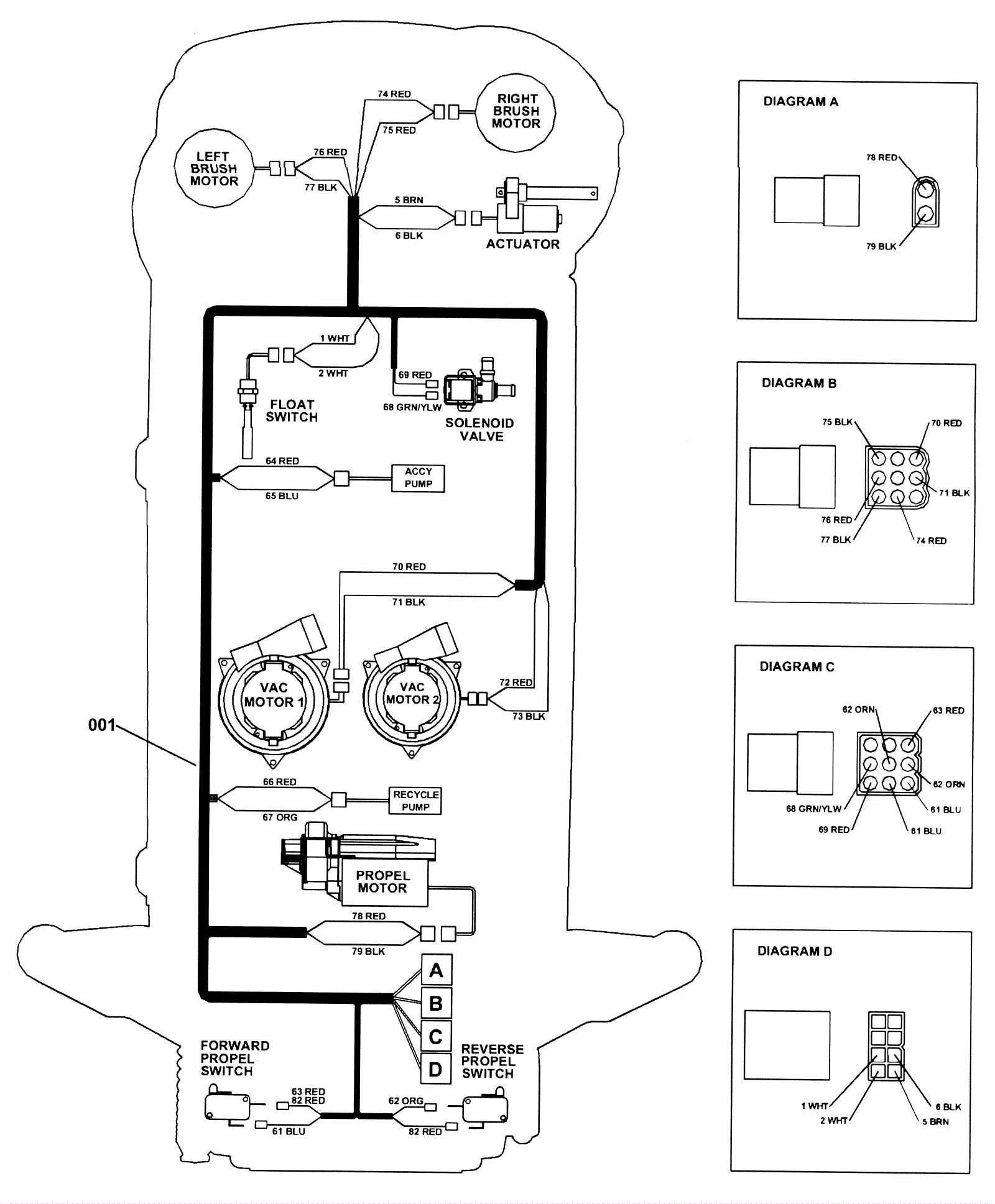
Wiring Group-Main Harness
Click to enlarge
#
Part
Description
Price
Req
Notes
Availability
001
173-1769
saber main harness (OBSOLETE)
$361.11
1
usually ships 1-5 days