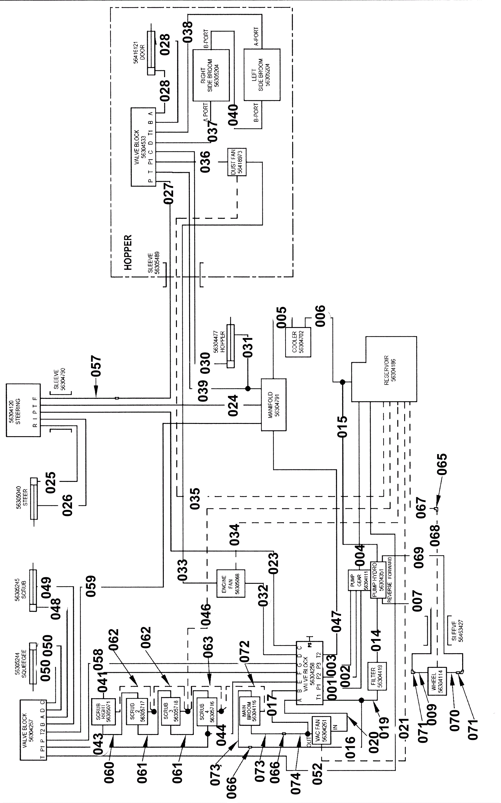
Hydraulic Assembly 54 Inch After SN 1873835
Click to enlarge