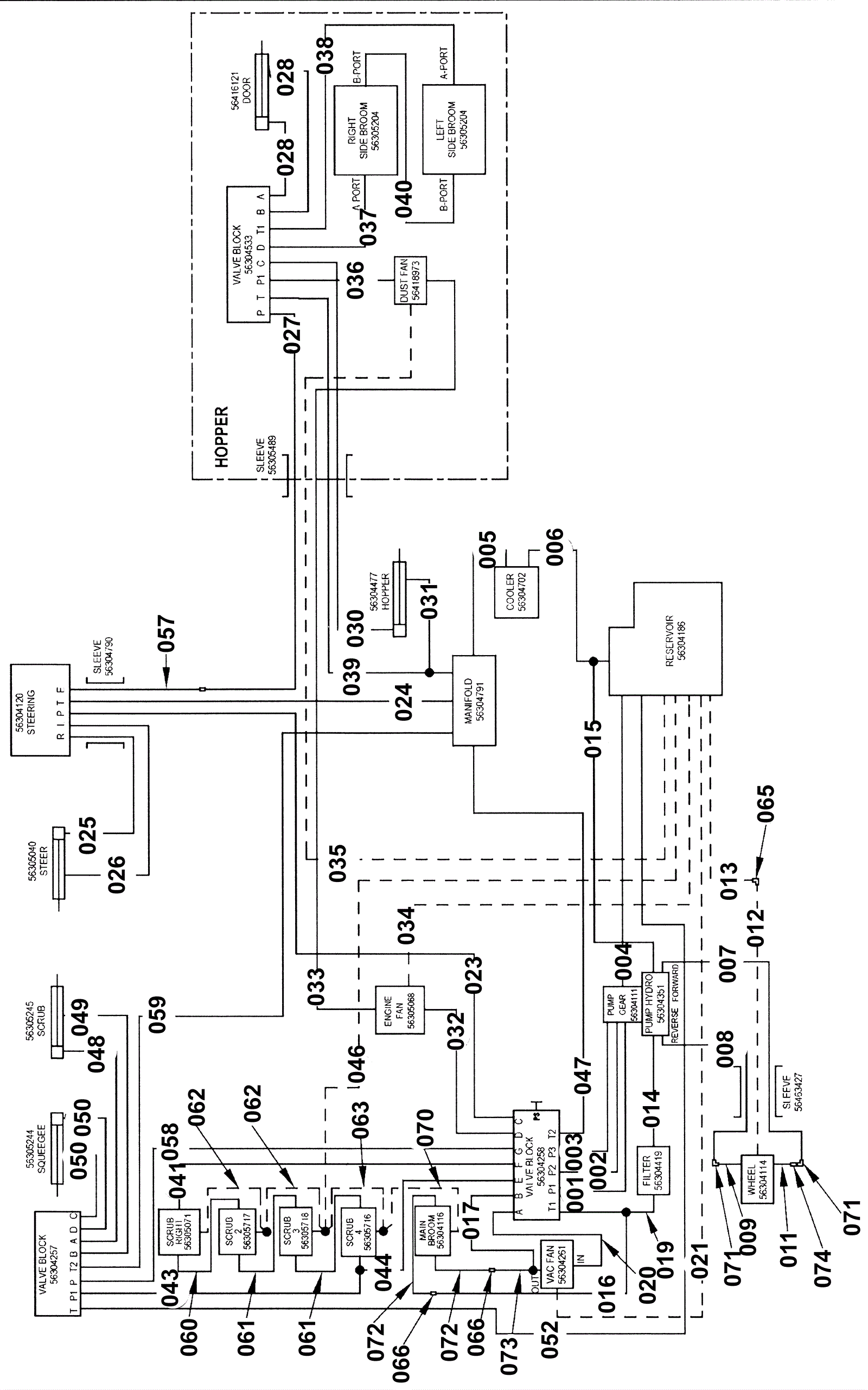
Hydraulic Assembly 54 Inch Before SN 1873835
Click to enlarge