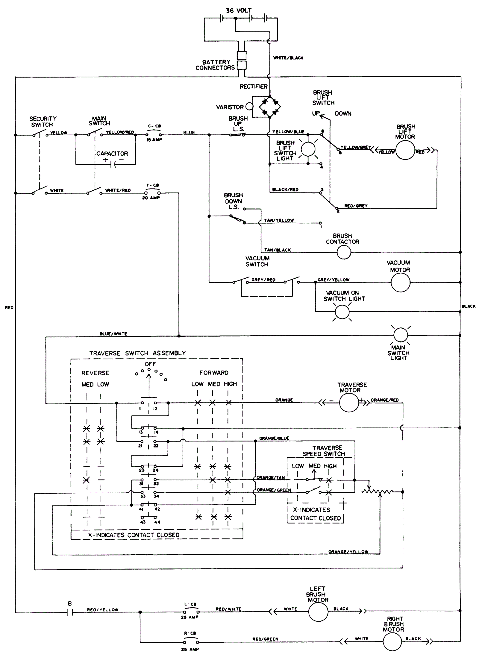
Wiring

Click to enlarge