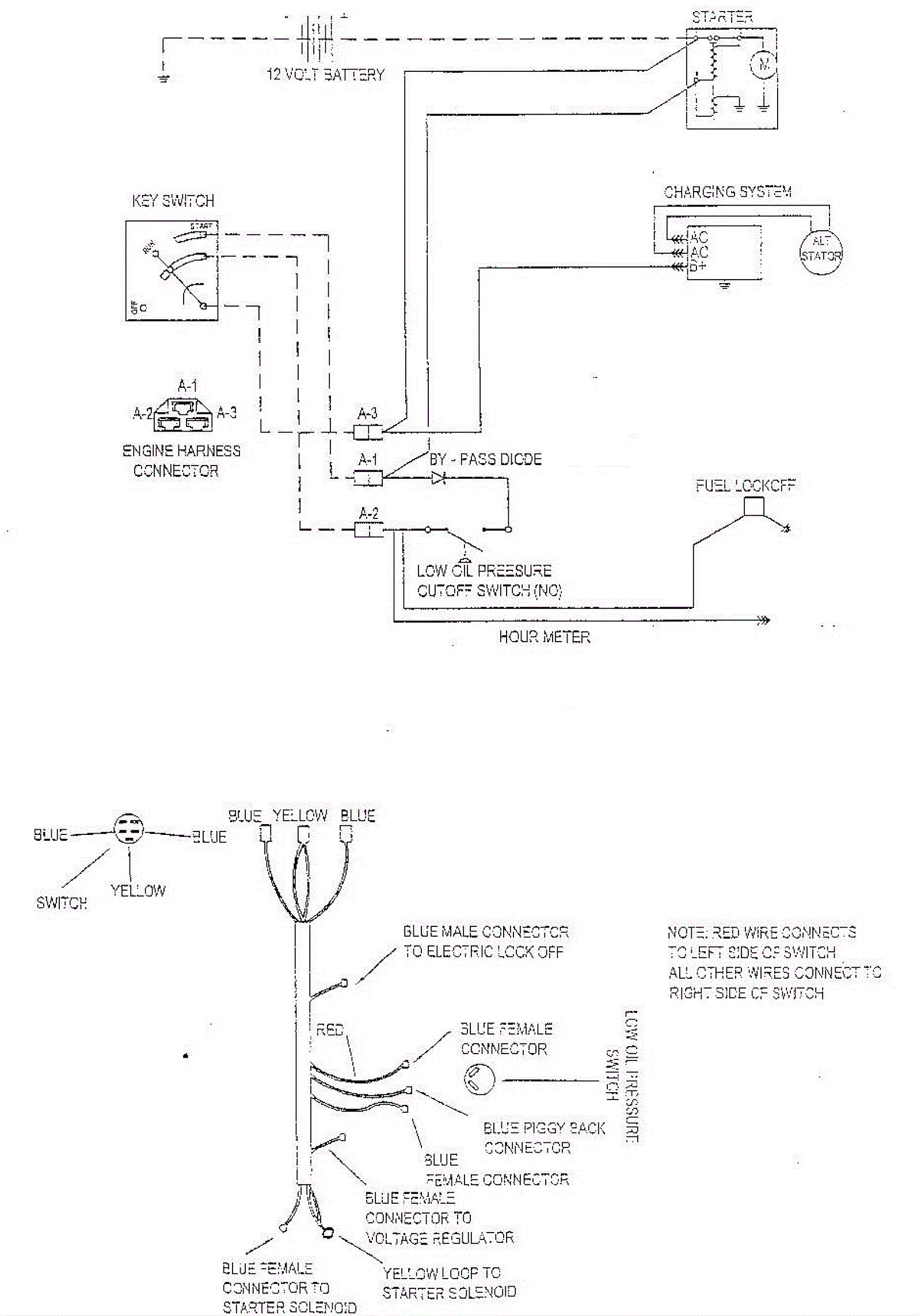
Kawasaki Wiring Diagram
Click to enlarge