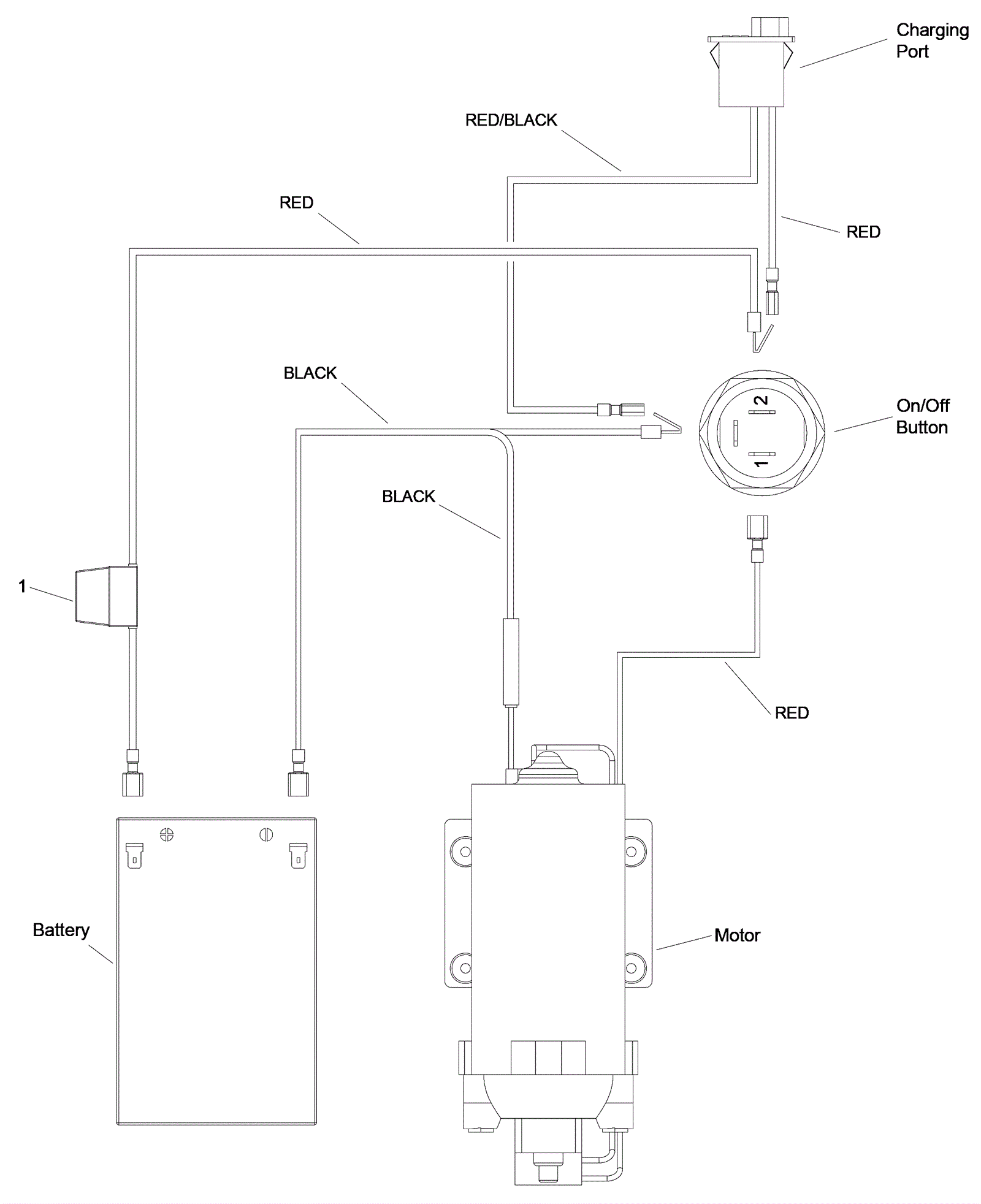
-Wiring Diagram
Click to enlarge